新築一戸建て 埼玉県八潮市大字南川崎 【仲介手数料無料】八潮市南川崎 新築一戸建て 4号棟 3,380万円 (税込) この物件に問合せる

Summary

所在地: 埼玉県八潮市大字南川崎
交通: つくばエクスプレス「八潮」よりバス乗車24分、「木曽根」より徒歩5分
つくばエクスプレス「三郷中央」より徒歩53分
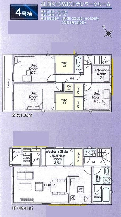
間取り: 4SLDK
土地面積: 100.1㎡(30.28坪)
建物面積: 100.44㎡(30.38坪)
築年数: 2026年06月 完成予定
物件の特徴:

オススメPOINT!!

【仲介手数料無料!】新築住宅がお得に買える・埼玉相互住宅では新築購入仲介手数料が無料・スーモ・アットホーム・ホームズなど各不動産情報サイトに掲載している越谷市・川口市・草加市・八潮市・春日部市・松伏町の新築物件情報の95%が仲介手数料無料です。 4号棟 4LDK・WIC×2か所・納戸!キッチン・洗面・浴室がまとまった水回り動線で、家事の移動もスムーズです!ミニストップまで徒歩約5分(350m)!お気軽にお問い合わせください!

こちらの物件は埼玉相互住宅 蒲生本店が担当します!!

10:00-19:00(火・水定休)

物件詳細情報

最寄駅/交通
つくばエクスプレス「八潮」よりバス乗車24分、「木曽根」より徒歩5分
つくばエクスプレス「三郷中央」より徒歩53分
所在地
埼玉県八潮市大字南川崎
販売価格
3,380万円 (税込)
間取り
4SLDK
取引態様
仲介
建物構造
木造
土地面積
100.1㎡(30.28坪)
建物面積
100.44㎡(30.38坪)
建ぺい率
60%
容積率
160%
地目
宅地
都市計画
市街化区域
用途地域
第一種住居地域
現状
未完成
引渡
相談
接道
西南側4m
セットバック
不要
私道
無し
築年月
2026年06月 完成予定
土地権利
所有権
設備
公営水道,浄化槽,都市ガス
建築確認番号
第KBI-SGM26-10-0806号
管理番号
93246
学区
八潮市立潮止小学校まで1100m/八潮市立八潮中学校まで2700m
リフォーム

物件登録日
2026年05月01日
掲載期限
2026-05-14
特記事項
備考
・敷地内に電柱及び支線あり
キーワード
開発許可番号

このエリアの近隣物件

資料請求・見学予約フォームContact Form

お問合せ種別必須

お名前必須

メールアドレス必須

電話番号
郵便番号

都道府県

以降の住所

来場希望日時必須

ご希望の時間帯必須

※当日はお電話にてご予約ください。

お問合せ内容
その他ご要望など
近隣の物件情報が必要かどうか

COLUMN お役立ち情報

PageTop