新築一戸建て 埼玉県越谷市東越谷10丁目 【仲介手数料無料】越谷市東越谷10丁目 新築戸建て 4,199万円 (税込) この物件に問合せる

Summary

所在地: 埼玉県越谷市東越谷10丁目
交通: 東武伊勢崎線「越谷」より徒歩33分
東武伊勢崎線「北越谷」より徒歩32分
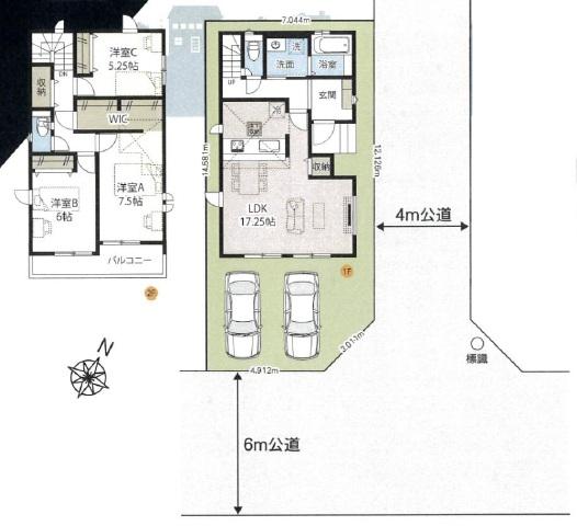
間取り: 3LDK
土地面積: 公簿100.28㎡(30.33坪)
建物面積: 96.05㎡(29.05坪)
築年数: 2026年07月 完成予定
物件の特徴:

オススメPOINT!!

【仲介手数料無料!】新築住宅がお得に買える・埼玉相互住宅では新築購入仲介手数料が無料・スーモ・アットホーム・ホームズなど各不動産情報サイトに掲載している越谷市・川口市・草加市・八潮市・春日部市・松伏町の新築物件情報の95%が仲介手数料無料です。 学校・公園・買い物施設・病院などが揃う利便性に優れた住環境♪全居室収納や床下収納の他、ウォークインクローゼットがあるため収納力豊富です!お問い合わせは埼玉相互住宅 東越谷店までお問い合わせください。

こちらの物件は埼玉相互住宅 東越谷店が担当します!!

10:00-19:00(火・水定休)

物件詳細情報

最寄駅/交通
東武伊勢崎線「越谷」より徒歩33分
東武伊勢崎線「北越谷」より徒歩32分
所在地
埼玉県越谷市東越谷10丁目
販売価格
4,199万円 (税込)
間取り
3LDK
取引態様
仲介
建物構造
木造
土地面積
公簿 100.28㎡(30.33坪)
建物面積
96.05㎡(29.05坪)
建ぺい率
60%
容積率
100%
地目
宅地
都市計画
市街化区域
用途地域
第一種中高層住居専用地域
現状
未完成
引渡
相談
接道
東側4m公道 ,南側m公道
セットバック
不要
私道
無し
築年月
2026年07月 完成予定
土地権利
所有権
設備
公営水道,本下水,都市ガス
建築確認番号
第HPA-26-04223-1号
管理番号
93162
学区
越谷市立城ノ上小学校まで763m/越谷市立東中学校まで1333m
リフォーム

物件登録日
2026年04月29日
掲載期限
2026-05-04
特記事項
備考
・宅地内に電柱及び支線が入る場合があります。
キーワード
開発許可番号

資料請求・見学予約フォームContact Form

お問合せ種別必須

お名前必須

メールアドレス必須

電話番号
郵便番号

都道府県

以降の住所

来場希望日時必須

ご希望の時間帯必須

※当日はお電話にてご予約ください。

お問合せ内容
その他ご要望など
近隣の物件情報が必要かどうか

COLUMN お役立ち情報

PageTop