新築一戸建て 埼玉県川口市長蔵2丁目 【仲介手数料無料】川口市長蔵2丁目 全4棟の4号棟 新築一戸建て 5,380万円 (税込) この物件に問合せる

Summary

所在地: 埼玉県川口市長蔵2丁目
交通: 埼玉高速鉄道「戸塚安行」より徒歩9分
JR武蔵野線「東川口」より徒歩30分
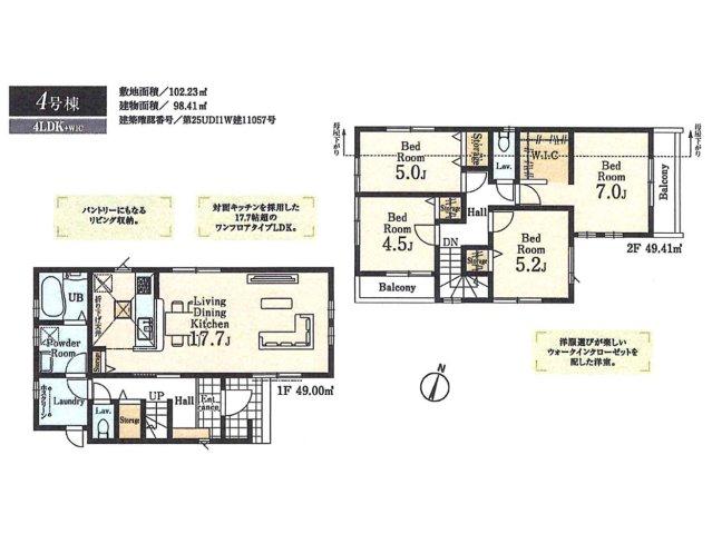
間取り: 4LDK
土地面積: 公簿102.23㎡(30.92坪)
建物面積: 98.41㎡(29.76坪)
築年数: 2026年05月 完成予定
物件の特徴:

オススメPOINT!!

【仲介手数料無料!】新築住宅がお得に買える・埼玉相互住宅では新築購入仲介手数料が無料・スーモ・アットホーム・ホームズなど各不動産情報サイトに掲載している越谷市・川口市・草加市・八潮市・春日部市・松伏町の新築物件情報の95%が仲介手数料無料です。 ■全4棟の4号棟・カースペース2台可■LDK17.7帖・対面式キッチン■パントリーあり!

こちらの物件は埼玉相互住宅 越谷店が担当します!!

10:00-19:00(火・水定休)

物件詳細情報

最寄駅/交通
埼玉高速鉄道「戸塚安行」より徒歩9分
JR武蔵野線「東川口」より徒歩30分
所在地
埼玉県川口市長蔵2丁目
販売価格
5,380万円 (税込)
間取り
4LDK
取引態様
仲介
建物構造
木造
土地面積
公簿 102.23㎡(30.92坪)
建物面積
98.41㎡(29.76坪)
建ぺい率
50%
容積率
100%
地目
宅地
都市計画
市街化区域
用途地域
第一種低層住居専用地域
現状
未完成
引渡
相談
接道
北東側6m公道
セットバック
不要
私道
無し
築年月
2026年05月 完成予定
土地権利
所有権
設備
公営水道,本下水,都市ガス
建築確認番号
第25UDI1W建11057号
管理番号
91988
学区
戸塚綾瀬小学校まで1100m/戸塚中学校まで500m
リフォーム

物件登録日
2026年04月26日
掲載期限
2026-04-27
特記事項
備考
■戸塚綾瀬小学校まで徒歩14分(約1100m)・戸塚中学校まで徒歩7分(約500m)
キーワード
開発許可番号

このエリアの近隣物件

資料請求・見学予約フォームContact Form

お問合せ種別必須

お名前必須

メールアドレス必須

電話番号
郵便番号

都道府県

以降の住所

来場希望日時必須

ご希望の時間帯必須

※当日はお電話にてご予約ください。

お問合せ内容
その他ご要望など
近隣の物件情報が必要かどうか

COLUMN お役立ち情報

PageTop