新築一戸建て 埼玉県春日部市藤塚 【仲介手数料無料】春日部市藤塚 新築一戸建て 3,180万円 (税込) この物件に問合せる

Summary

所在地: 埼玉県春日部市藤塚
交通: 東武野田線「藤の牛島」より徒歩12分
東武伊勢崎線「一ノ割」より徒歩23分
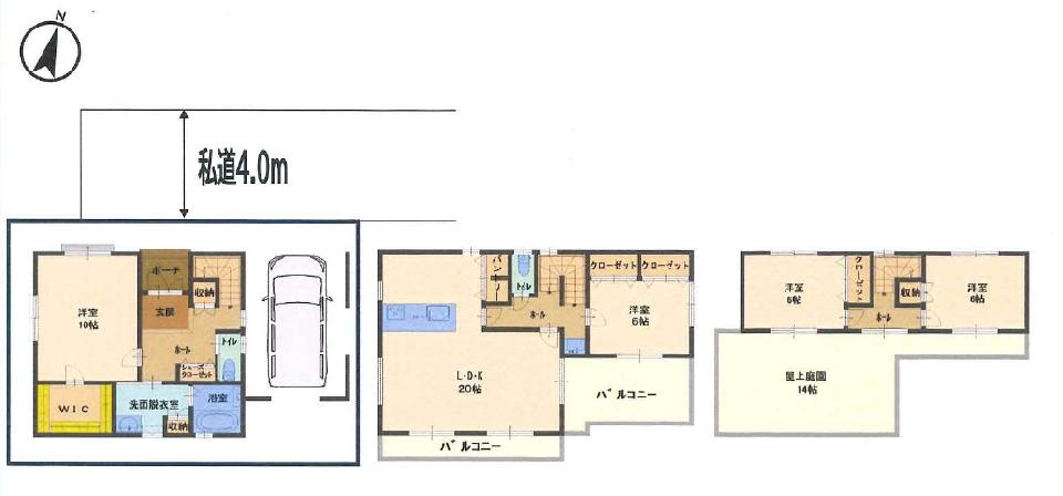
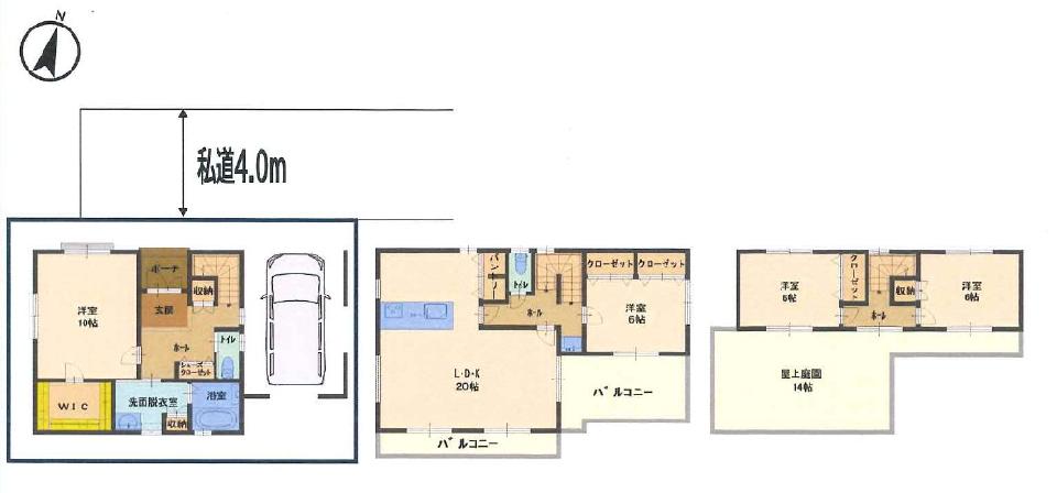
間取り: 4LDK
土地面積: 実測108.74㎡(32.89坪)
建物面積: 147.1㎡(44.49坪)
築年数: 2026年05月 完成予定
物件の特徴:

オススメPOINT!!

【仲介手数料無料!】新築住宅がお得に買える・埼玉相互住宅では新築購入仲介手数料が無料・スーモ・アットホーム・ホームズなど各不動産情報サイトに掲載している越谷市・川口市・草加市・八潮市・春日部市・松伏町の新築物件情報の95%が仲介手数料無料です。 ◆屋上庭園付き4LDK・オール電化住宅 ◆駐車1台可(車種による)  ◆プライベート性の高い2階LDK20帖・足元ポカポカ床暖房 ◆全居室6帖以上・収納付き ◆教育・商業が整った暮らしやすい住環境

こちらの物件は埼玉相互住宅 春日部店が担当します!!

10:00~19:00(火・水定休)

物件詳細情報

最寄駅/交通
東武野田線「藤の牛島」より徒歩12分
東武伊勢崎線「一ノ割」より徒歩23分
所在地
埼玉県春日部市藤塚
販売価格
3,180万円 (税込)
間取り
4LDK
取引態様
仲介
建物構造
木造
土地面積
実測 108.74㎡(32.89坪)
建物面積
147.1㎡(44.49坪)
建ぺい率
60%
容積率
200%
地目
宅地
都市計画
市街化区域
用途地域
第一種中高層住居専用地域
現状
未完成
引渡
相談
接道
北側4m私道
セットバック
不要
私道
有り 97.69㎡
築年月
2026年05月 完成予定
土地権利
所有権
設備
公営水道,本下水,
建築確認番号
第SJK-KX255640340号
管理番号
88787
学区
春日部市立牛島小学校まで1630m/春日部市立豊野中学校まで1550m
リフォーム

物件登録日
2026年02月10日
掲載期限
2026-04-09
特記事項
備考
・建物面積:147.10平米※ビルトイン車庫18.77平米含む ・土地面積/公簿:108.56平米、実測:108.74平米
キーワード
開発許可番号

このエリアの近隣物件

資料請求・見学予約フォームContact Form

お問合せ種別必須

お名前必須

メールアドレス必須

電話番号
郵便番号

都道府県

以降の住所

来場希望日時必須

ご希望の時間帯必須

※当日はお電話にてご予約ください。

お問合せ内容
その他ご要望など
近隣の物件情報が必要かどうか

COLUMN お役立ち情報

PageTop