マンション 埼玉県川口市東川口5丁目 グラン・コート東川口 1階/5階建 3,480万円 (税込) この物件に問合せる

Summary

所在地: 埼玉県川口市東川口5丁目
交通: JR武蔵野線「東川口」より徒歩12分
埼玉高速鉄道「東川口」より徒歩12分
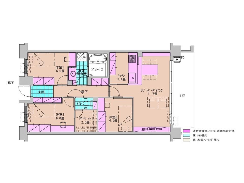
間取り: 3LDK
専有面積: 69.02㎡(20.87坪)
築年数: 2006年03月(築19年)
管理費: 10,490円/月
修繕積立金: 10,140円/月
物件の特徴:

オススメPOINT!!

■LDK15.1帖・対面式キッチン■全室オーダー家具・全室照明器具付き!

こちらの物件は埼玉相互住宅 越谷店が担当します!!

10:00-19:00(火・水定休)

物件詳細情報

最寄駅/交通
JR武蔵野線「東川口」より徒歩12分
埼玉高速鉄道「東川口」より徒歩12分
所在地
埼玉県川口市東川口5丁目
販売価格
3,480万円 (税込)
管理費
10490円/月
修繕積立金
10140円/月
専有面積(壁芯)
69.02㎡(20.87坪)
バルコニー面積
0㎡
間取り
3LDK
主要採光面
所在階/階数
1階/5階建
総戸数
34戸
築年月
2006年03月(築19年)
取引態様
仲介
建物構造
RC(鉄筋コンクリート)
都市計画
市街化区域
用途地域
第二種中高層住居専用地域
現状
空家
管理形態
全部委託
土地権利
所有権
設備
公営水道,本下水,
駐車場
無し
駐輪場
バイク置場
専用庭
無し
管理番号
85926
学区
戸塚北小学校まで366m/戸塚中学校まで2300m
物件登録日
2025年11月17日
リフォーム

掲載期限
2026-02-05
特記事項
備考
■戸塚北小学校まで徒歩4分(約366m)・戸塚中学校まで徒歩28分(約2300m)
キーワード

資料請求・見学予約フォームContact Form

お問合せ種別必須

お名前必須

メールアドレス必須

電話番号
郵便番号

都道府県

以降の住所

来場希望日時必須

ご希望の時間帯必須

※当日はお電話にてご予約ください。

お問合せ内容
その他ご要望など
近隣の物件情報が必要かどうか

COLUMN お役立ち情報

PageTop