新築一戸建て 埼玉県さいたま市岩槻区大字小溝 【仲介手数料無料】さいたま市岩槻区小溝 新築一戸建 2,680万円 (税込) この物件に問合せる

Summary

所在地: 埼玉県さいたま市岩槻区大字小溝
交通: 東武野田線「豊春」より徒歩20分
東武野田線「八木崎」より徒歩30分
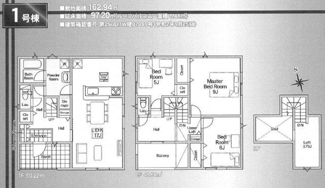
間取り: 3LDK
土地面積: 公簿162.94㎡(49.28坪)
建物面積: 97.2㎡(29.4坪)
築年数: 2026年02月
物件の特徴:

オススメPOINT!!

【仲介手数料無料!】新築住宅がお得に買える・埼玉相互住宅では新築購入仲介手数料が無料・スーモ・アットホーム・ホームズなど各不動産情報サイトに掲載している越谷市・川口市・草加市・八潮市・春日部市・松伏町の新築物件情報の95%が仲介手数料無料です。 ◆全居室に収納がある3LDK・ロフト ◆駐車1台可(車種による)  ◆広々17帖のリビング空間・水回りのコンパクトな家事動線 ◆南向きで陽当たり良好 ◆教育・商業施設が整った閑静な住宅街

こちらの物件は埼玉相互住宅 春日部店が担当します!!

10:00~19:00(火・水定休)

物件詳細情報

最寄駅/交通
東武野田線「豊春」より徒歩20分
東武野田線「八木崎」より徒歩30分
所在地
埼玉県さいたま市岩槻区大字小溝
販売価格
2,680万円 (税込)
間取り
3LDK
取引態様
仲介
建物構造
木造
土地面積
公簿 162.94㎡(49.28坪)
建物面積
97.2㎡(29.4坪)
建ぺい率
60%
容積率
200%
地目
宅地
都市計画
市街化調整区域
用途地域
無指定
現状
空家
引渡
相談
接道
南側9.1m公道
セットバック
不要
私道
無し
築年月
2026年02月
土地権利
所有権
設備
公営水道,,プロパン
建築確認番号
管理番号
92561
学区
さいたま市立慈恩寺小学校まで1300m/さいたま市立慈恩寺中学校まで1900m
リフォーム

物件登録日
2026年04月13日
掲載期限
2026-04-25
特記事項
備考
・建物面積に別途ルーフバルコニー約6.48平米、およびポーチの一部約1.62平米有り ・告知事項あり
キーワード
開発許可番号

資料請求・見学予約フォームContact Form

お問合せ種別必須

お名前必須

メールアドレス必須

電話番号
郵便番号

都道府県

以降の住所

来場希望日時必須

ご希望の時間帯必須

※当日はお電話にてご予約ください。

お問合せ内容
その他ご要望など
近隣の物件情報が必要かどうか

COLUMN お役立ち情報

PageTop