新築一戸建て 埼玉県草加市瀬崎5丁目 【仲介手数料無料】草加市瀬崎5丁目 新築一戸建て 6号棟 3,980万円 この物件に問合せる

Summary

所在地: 埼玉県草加市瀬崎5丁目
交通: 東武伊勢崎線「谷塚」より徒歩22分
東武伊勢崎線「草加」より徒歩34分
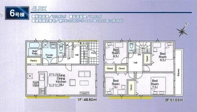
間取り: 4LDK
土地面積: 122.87㎡(37.16坪)
建物面積: 99.63㎡(30.13坪)
築年数: 2026年03月 完成予定
物件の特徴:

オススメPOINT!!

【仲介手数料無料!】新築住宅がお得に買える・埼玉相互住宅では新築購入仲介手数料が無料・スーモ・アットホーム・ホームズなど各不動産情報サイトに掲載している越谷市・川口市・草加市・八潮市・春日部市・松伏町の新築物件情報の95%が仲介手数料無料です。 6号棟 全居室に収納がある4LDK・パントリー!キッチン・洗面・浴室がまとまった水回り動線で、家事の移動もスムーズです!駐車スペース2台可(車種による)!お気軽にお問い合わせください!

こちらの物件は埼玉相互住宅 蒲生本店が担当します!!

10:00-19:00(火・水定休)

物件詳細情報

最寄駅/交通
東武伊勢崎線「谷塚」より徒歩22分
東武伊勢崎線「草加」より徒歩34分
所在地
埼玉県草加市瀬崎5丁目
販売価格
3,980万円
間取り
4LDK
取引態様
仲介
建物構造
木造
土地面積
122.87㎡(37.16坪)
建物面積
99.63㎡(30.13坪)
建ぺい率
70%
容積率
200%
地目
宅地
都市計画
市街化区域
用途地域
準工業地域
現状
未完成
引渡
相談
接道
東側6m公道 ,北側6m公道
セットバック
不要
私道
無し
築年月
2026年03月 完成予定
土地権利
所有権
設備
公営水道,本下水,都市ガス
建築確認番号
第KBI-SGM25-10-4900号
管理番号
87038
学区
草加市立瀬崎小学校まで1100m/草加市立瀬崎中学校まで550m
リフォーム

物件登録日
2025年12月20日
掲載期限
2026-02-15
特記事項
備考
・敷地内に電柱及び支線が入る場合があります。
キーワード
開発許可番号

このエリアの近隣物件

資料請求・見学予約フォームContact Form

お問合せ種別必須

お名前必須

メールアドレス必須

電話番号
郵便番号

都道府県

以降の住所

来場希望日時必須

ご希望の時間帯必須

※当日はお電話にてご予約ください。

お問合せ内容
その他ご要望など
近隣の物件情報が必要かどうか

COLUMN お役立ち情報

PageTop