マンション 埼玉県越谷市大字大里 ミオカステーロ北越谷 3階/8階建 3,348万円 (税込) この物件に問合せる

Summary

所在地: 埼玉県越谷市大字大里
交通: 東武伊勢崎線「大袋」より徒歩12分
東武伊勢崎線「北越谷」より徒歩19分
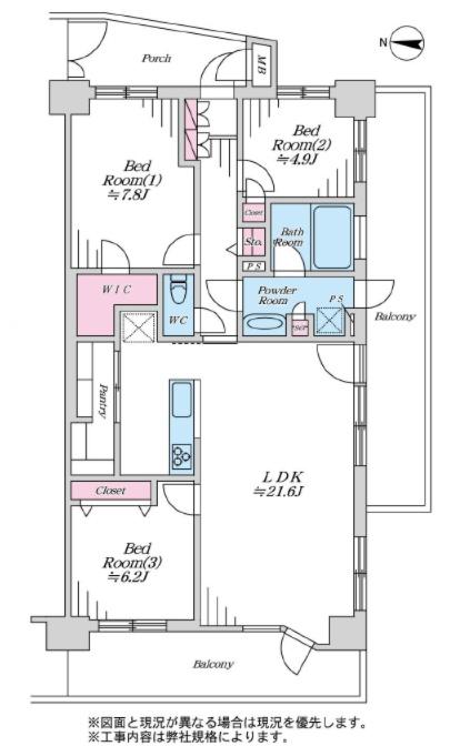
間取り: 3LDK
専有面積: 91.65㎡(27.72坪)
築年数: 2007年03月(築18年)
管理費: 11,460円/月
修繕積立金: 9,170円/月
物件の特徴:

オススメPOINT!!

三方角住戸につき陽当り・通風良好!大切なペットと暮らせる住まい(*^_^*)ペット飼育可(細則有)使い勝手の良いカウンターキッチンに便利なパントリー収納付き!お気軽にお問合せ下さい(*^_^*)

こちらの物件は埼玉相互住宅 北越谷店が担当します!!

10:00-19:00(火・水定休)

物件詳細情報

最寄駅/交通
東武伊勢崎線「大袋」より徒歩12分
東武伊勢崎線「北越谷」より徒歩19分
所在地
埼玉県越谷市大字大里
販売価格
3,348万円 (税込)
管理費
11460円/月
修繕積立金
9170円/月
専有面積(壁芯)
91.65㎡(27.72坪)
バルコニー面積
25.33㎡
間取り
3LDK
主要採光面
所在階/階数
3階/8階建
総戸数
109戸
築年月
2007年03月(築18年)
取引態様
仲介
建物構造
RC(鉄筋コンクリート)
都市計画
用途地域
準住居地域
現状
空家
管理形態
全部委託
土地権利
所有権
設備
公営水道,本下水,都市ガス
駐車場
有り 2500円 /月
駐輪場
バイク置場
専用庭
無し
管理番号
87473
学区
越谷市立大袋東小学校まで821m/越谷市立大袋中学校まで1881m
物件登録日
2026年01月11日
リフォーム
内装リフォーム 2026年01月 完了済み
キッチン、浴室、トイレ、全室クリーニング、壁・クロス、床 ハウスクリーニング等
掲載期限
2026-02-16
特記事項
備考
駐車場:2500円~5500円/月額 駐輪場:150円/月額 バイク置き場:1000円/月額
キーワード

資料請求・見学予約フォームContact Form

お問合せ種別必須

お名前必須

メールアドレス必須

電話番号
郵便番号

都道府県

以降の住所

来場希望日時必須

ご希望の時間帯必須

※当日はお電話にてご予約ください。

お問合せ内容
その他ご要望など
近隣の物件情報が必要かどうか

COLUMN お役立ち情報

PageTop