一戸建て 埼玉県春日部市増富 春日部市増富 中古一戸建て 1,690万円 (税込) この物件に問合せる
| 所在地: | 埼玉県春日部市増富 | 
|---|---|
| 交通: | 
      東武野田線「豊春」より徒歩15分 東武野田線「東岩槻」より徒歩25分  | 
  
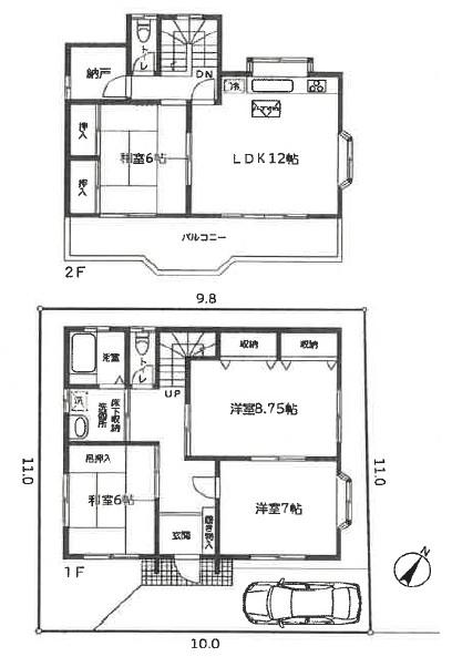
| 間取り: | 4LDK | 
| 土地面積: | 公簿110.56㎡(33.44坪) | 
| 建物面積: | 103.5㎡(31.3坪) | 
| 築年数: | 1999年02月(築26年) | 
| 物件の特徴: | 
オススメPOINT!!
物件詳細情報
- 最寄駅/交通
 - 東武野田線「豊春」より徒歩15分
東武野田線「東岩槻」より徒歩25分 
- 所在地
 - 埼玉県春日部市増富
 
- 販売価格
 - 1,690万円 (税込)
 
- 間取り
 - 4LDK
 
- 取引態様
 - 仲介
 
- 建物構造
 - 木造
 
- 土地面積
 - 公簿 110.56㎡(33.44坪)
 
- 建物面積
 - 103.5㎡(31.3坪)
 
- 建ぺい率
 - 60%
 
- 容積率
 - 200%
 
- 地目
 - 宅地
 
- 都市計画
 - 市街化区域
 
- 用途地域
 - 第一種中高層住居専用地域
 
- 現状
 - 空家
 
- 引渡
 - 相談
 
- 接道
 - 東南側5m公道
 
- セットバック
 - 不要
 
- 私道
 - 無し
 
- 築年月
 - 1999年02月(築26年)
 
- 土地権利
 - 所有権
 
- 設備
 - 公営水道,本下水,都市ガス
 
- 建築確認番号
 
- 管理番号
 - 85479
 
- 学区
 - 春日部市立豊春小学校まで1108m/春日部市立大増中学校まで1596m
 
- リフォーム
 - 内装リフォーム 2025年10月 完了済み
壁・クロス、床 畳12枚裏返し、襖・障子・網戸貼替
外装リフォーム 2025年10月 完了済み
外壁、屋根 屋根カバー工法、外壁塗替 
- 物件登録日
 - 2025年11月04日
 
- 掲載期限
 - 2025-11-16
 
- 特記事項
 
- 備考
 
- キーワード
 
- 開発許可番号