一戸建て 埼玉県越谷市蒲生2丁目 越谷市蒲生2丁目 中古一戸建て 3,090万円 (税込) この物件に問合せる

Summary

所在地: 埼玉県越谷市蒲生2丁目
交通: 東武伊勢崎線「蒲生」より徒歩16分
東武伊勢崎線「新田」より徒歩19分
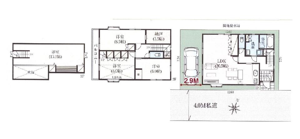
間取り: 4SLDK
土地面積: 97.02㎡(29.34坪)
建物面積: 143.77㎡(43.49坪)
築年数: 1996年11月(築29年)
物件の特徴:

オススメPOINT!!

南東道路に面し陽当り良好!広々とした約20.5帖のリビング空間!全居室6帖以上でゆとりある住まいです!キッチン・洗面・浴室がワンフロアにまとまり、家事がスムーズにこなせる間取りです!

こちらの物件は埼玉相互住宅 蒲生本店が担当します!!

10:00-19:00(火・水定休)

物件詳細情報

最寄駅/交通
東武伊勢崎線「蒲生」より徒歩16分
東武伊勢崎線「新田」より徒歩19分
所在地
埼玉県越谷市蒲生2丁目
販売価格
3,090万円 (税込)
間取り
4SLDK
取引態様
仲介
建物構造
木造
土地面積
97.02㎡(29.34坪)
建物面積
143.77㎡(43.49坪)
建ぺい率
60%
容積率
200%
地目
宅地
都市計画
市街化区域
用途地域
第一種中高層住居専用地域
現状
空家
引渡
相談
接道
東南側4m私道
セットバック
不要
私道
無し
築年月
1996年11月(築29年)
土地権利
所有権
設備
公営水道,本下水,都市ガス
建築確認番号
管理番号
85475
学区
越谷市立蒲生南小学校まで640m/越谷市立光陽中学校まで2320m
リフォーム
内装リフォーム 2025年10月 完了済み
キッチン、浴室、トイレ、壁・クロス、床 ハウスクリーニング、等
物件登録日
2025年11月04日
掲載期限
2025-12-26
特記事項
備考
キーワード
開発許可番号

このエリアの近隣物件

資料請求・見学予約フォームContact Form

お問合せ種別必須

お名前必須

メールアドレス必須

電話番号
郵便番号

都道府県

以降の住所

来場希望日時必須

ご希望の時間帯必須

※当日はお電話にてご予約ください。

お問合せ内容
その他ご要望など
近隣の物件情報が必要かどうか

COLUMN お役立ち情報

PageTop