新築一戸建て 埼玉県春日部市南2丁目 【仲介手数料無料】春日部市南2丁目 新築一戸建て 4号棟 3,380万円 (税込) この物件に問合せる

Summary

所在地: 埼玉県春日部市南2丁目
交通: 東武伊勢崎線「春日部」より徒歩17分
東武伊勢崎線「一ノ割」より徒歩17分
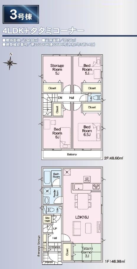
間取り: 3SLDK
土地面積: 公簿103.84㎡(31.41坪)
建物面積: 87.48㎡(26.46坪)
築年数: 2025年10月
物件の特徴:

オススメPOINT!!

【仲介手数料無料!】新築住宅がお得に買える・埼玉相互住宅では新築購入仲介手数料が無料・スーモ・アットホーム・ホームズなど各不動産情報サイトに掲載している越谷市・川口市・草加市・八潮市・春日部市・松伏町の新築物件情報の95%が仲介手数料無料です。 4号棟 広々16帖のLDK!主寝室8帖!WIC・パントリー・クローゼットがある収納豊富な間取りです!水回りの集中した家事ラク動線!南向きバルコニーで陽当り良好です!駐車1台可(車種による)!

こちらの物件は埼玉相互住宅 春日部店が担当します!!

10:00~19:00(火・水定休)

物件詳細情報

最寄駅/交通
東武伊勢崎線「春日部」より徒歩17分
東武伊勢崎線「一ノ割」より徒歩17分
所在地
埼玉県春日部市南2丁目
販売価格
3,380万円 (税込)
間取り
3SLDK
取引態様
仲介
建物構造
木造
土地面積
公簿 103.84㎡(31.41坪)
建物面積
87.48㎡(26.46坪)
建ぺい率
60%
容積率
200%
地目
都市計画
市街化区域
用途地域
第一種中高層住居専用地域
現状
空家
引渡
相談
接道
南側6m公道
セットバック
不要
私道
無し
築年月
2025年10月
土地権利
所有権
設備
公営水道,本下水,都市ガス
建築確認番号
管理番号
85423
学区
春日部市立上沖小学校まで950m/春日部市立大沼中学校まで1600m
リフォーム

物件登録日
2025年11月03日
掲載期限
2025-11-15
特記事項
備考
・法令上の制限/内谷南地区地区計画 ・敷地内に電柱あり
キーワード
開発許可番号

このエリアの近隣物件

資料請求・見学予約フォームContact Form

お問合せ種別必須

お名前必須

メールアドレス必須

電話番号
郵便番号

都道府県

以降の住所

来場希望日時必須

ご希望の時間帯必須

※当日はお電話にてご予約ください。

お問合せ内容
その他ご要望など

COLUMN お役立ち情報

PageTop