マンション 埼玉県春日部市中央2丁目 エクレール春日部中央 1階/7階建 2,790万円 (税込) この物件に問合せる

Summary

所在地: 埼玉県春日部市中央2丁目
交通: 東武野田線「春日部」より徒歩10分
東武野田線「八木崎」より徒歩11分
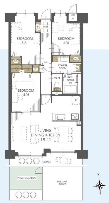
間取り: 3LDK
専有面積: 65.63㎡(19.85坪)
築年数: 1995年08月(築30年)
管理費: 12,400円/月
修繕積立金: 10,500円/月
物件の特徴:

オススメPOINT!!

1階部分・専用庭・駐車場付きの3LDK!新規リノベーション物件(2025年12月完了予定)!大切なペットと暮らせるお住まい(細則有)!オートロック完備!八木崎小学校まで徒歩約2分(130m)!

こちらの物件は埼玉相互住宅 春日部店が担当します!!

10:00~19:00(火・水定休)

物件詳細情報

最寄駅/交通
東武野田線「春日部」より徒歩10分
東武野田線「八木崎」より徒歩11分
所在地
埼玉県春日部市中央2丁目
販売価格
2,790万円 (税込)
管理費
12400円/月
修繕積立金
10500円/月
専有面積(壁芯)
65.63㎡(19.85坪)
バルコニー面積
0㎡
間取り
3LDK
主要採光面
所在階/階数
1階/7階建
総戸数
57戸
築年月
1995年08月(築30年)
取引態様
仲介
建物構造
RC(鉄筋コンクリート)
都市計画
用途地域
現状
空家
管理形態
全部委託
土地権利
所有権
設備
,,
駐車場
有り 11000円 /月
駐輪場
バイク置場
専用庭
無し
管理番号
85186
学区
春日部市立八木崎小学校まで130m/春日部市立大沼中学校まで1480m
物件登録日
2025年10月27日
リフォーム
内装リフォーム 2025年12月 完了済み
キッチン、浴室、トイレ、壁・クロス、床 洗面化粧台、建具、配管更新、ハウスクリーニング等
掲載期限
2025-12-27
特記事項
備考
・専用庭面積/12.80平米 ・テラス/6.78平米 ・敷地内専用駐車場/有 ※継承可(月額11000円) ・専有部機械警備料/月額1060円
キーワード

資料請求・見学予約フォームContact Form

お問合せ種別必須

お名前必須

メールアドレス必須

電話番号
郵便番号

都道府県

以降の住所

来場希望日時必須

ご希望の時間帯必須

※当日はお電話にてご予約ください。

お問合せ内容
その他ご要望など
近隣の物件情報が必要かどうか

COLUMN お役立ち情報

PageTop