新築一戸建て 埼玉県春日部市増富 【仲介手数料無料】春日部市増富 新築一戸建て 2,980万円 (税込) この物件に問合せる

Summary

所在地: 埼玉県春日部市増富
交通: 東武野田線「豊春」より徒歩18分
東武野田線「八木崎」より徒歩32分
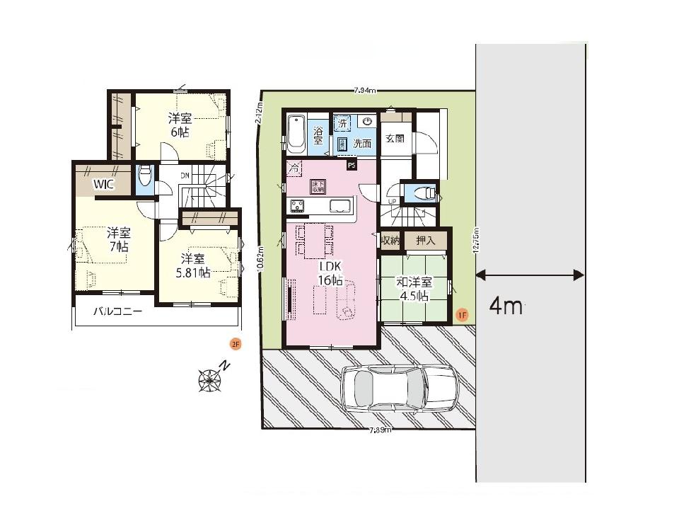
間取り: 4LDK
土地面積: 101.82㎡(30.8坪)
建物面積: 97.29㎡(29.43坪)
築年数: 2025年11月 完成予定
物件の特徴:

オススメPOINT!!

【仲介手数料無料!】新築住宅がお得に買える・埼玉相互住宅では新築購入仲介手数料が無料・スーモ・アットホーム・ホームズなど各不動産情報サイトに掲載している越谷市・川口市・草加市・八潮市・春日部市・松伏町の新築物件情報の95%が仲介手数料無料です。

こちらの物件は埼玉相互住宅 蒲生本店が担当します!!

10:00-19:00(火・水定休)

物件詳細情報

最寄駅/交通
東武野田線「豊春」より徒歩18分
東武野田線「八木崎」より徒歩32分
所在地
埼玉県春日部市増富
販売価格
2,980万円 (税込)
間取り
4LDK
取引態様
仲介
建物構造
木造
土地面積
101.82㎡(30.8坪)
建物面積
97.29㎡(29.43坪)
建ぺい率
60%
容積率
200%
地目
宅地
都市計画
市街化区域
用途地域
第一種中高層住居専用地域
現状
未完成
引渡
相談
接道
北東側4m私道
セットバック
不要
私道
236㎡×2/28
築年月
2025年11月 完成予定
土地権利
所有権
設備
公営水道,本下水,都市ガス
建築確認番号
第HPA-25-06468-1号
管理番号
84861
学区
春日部市立立野小学校まで1200m/春日部市立大増中学校まで1200m
リフォーム

物件登録日
2025年10月17日
掲載期限
2025-10-30
特記事項
備考
キーワード
開発許可番号

このエリアの近隣物件

資料請求・見学予約フォームContact Form

お問合せ種別必須

お名前必須

メールアドレス必須

電話番号
郵便番号

都道府県

以降の住所

来場希望日時必須

ご希望の時間帯必須

※当日はお電話にてご予約ください。

お問合せ内容
その他ご要望など

COLUMN お役立ち情報

PageTop