新築一戸建て 埼玉県草加市青柳7丁目 【仲介手数料無料】草加市青柳7丁目 新築一戸建て 3,280万円 (税込) この物件に問合せる

Summary

所在地: 埼玉県草加市青柳7丁目
交通: 東武伊勢崎線「新田」よりバス乗車17分、「総合グランド」より徒歩4分
JR武蔵野線「越谷レイクタウン」より徒歩33分
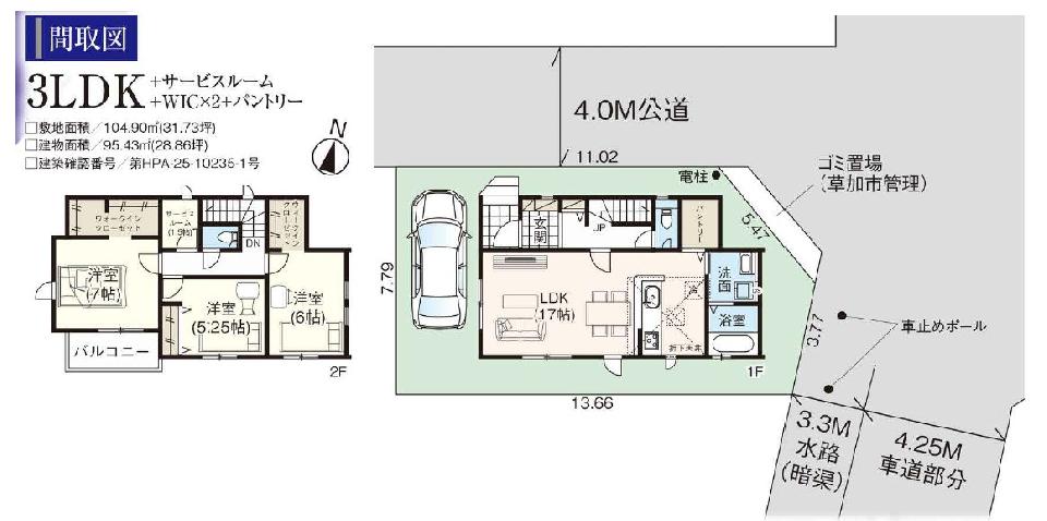
間取り: 3SLDK
土地面積: 公簿104.9㎡(31.73坪)
建物面積: 95.43㎡(28.86坪)
築年数: 2025年12月
物件の特徴:

オススメPOINT!!

【仲介手数料無料!】新築住宅がお得に買える・埼玉相互住宅では新築購入仲介手数料が無料・スーモ・アットホーム・ホームズなど各不動産情報サイトに掲載している越谷市・川口市・草加市・八潮市・春日部市・松伏町の新築物件情報の95%が仲介手数料無料です。 北東角地!WIC×2か所・パントリー・納戸付き3LDK!全室南向きです!キッチン・洗面・浴室がまとまった水回り動線で、家事の移動もスムーズです!川柳小学校まで徒歩約3分(210m)!

こちらの物件は埼玉相互住宅 蒲生本店が担当します!!

10:00-19:00(火・水定休)

物件詳細情報

最寄駅/交通
東武伊勢崎線「新田」よりバス乗車17分、「総合グランド」より徒歩4分
JR武蔵野線「越谷レイクタウン」より徒歩33分
所在地
埼玉県草加市青柳7丁目
販売価格
3,280万円 (税込)
間取り
3SLDK
取引態様
仲介
建物構造
木造
土地面積
公簿 104.9㎡(31.73坪)
建物面積
95.43㎡(28.86坪)
建ぺい率
70%
容積率
200%
地目
宅地
都市計画
市街化区域
用途地域
第一種中高層住居専用地域
現状
未完成
引渡
相談
接道
北側4m公道 ,東側7.5m公道
セットバック
不要
私道
無し
築年月
2025年12月
土地権利
所有権
設備
公営水道,本下水,都市ガス
建築確認番号
第HPA-25-10235-1号
管理番号
84789
学区
草加市立川柳小学校まで210m/草加市立青柳中学校まで1000m
リフォーム

物件登録日
2025年10月14日
掲載期限
2025-12-15
特記事項
備考
・敷地内に電柱及び支線が入ります
キーワード
開発許可番号

資料請求・見学予約フォームContact Form

お問合せ種別必須

お名前必須

メールアドレス必須

電話番号
郵便番号

都道府県

以降の住所

来場希望日時必須

ご希望の時間帯必須

※当日はお電話にてご予約ください。

お問合せ内容
その他ご要望など
近隣の物件情報が必要かどうか

COLUMN お役立ち情報

PageTop