新築一戸建て 埼玉県越谷市瓦曽根2丁目 【仲介手数料無料】越谷市瓦曽根2丁目 全1棟 新築一戸建て 6,298万円 (税込) この物件に問合せる

Summary

所在地: 埼玉県越谷市瓦曽根2丁目
交通: JR武蔵野線「南越谷」より徒歩12分
東武伊勢崎線「新越谷」より徒歩13分
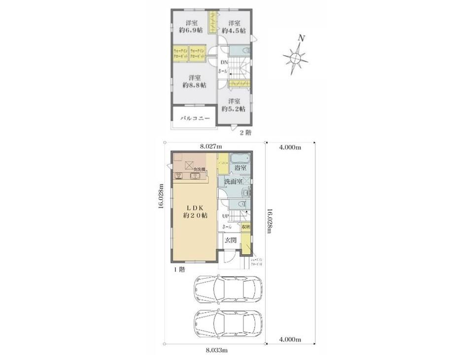
間取り: 4LDK
土地面積: 公簿128.7㎡(38.93坪)
建物面積: 105.45㎡(31.89坪)
築年数: 2025年11月
物件の特徴:

オススメPOINT!!

【仲介手数料無料!】新築住宅がお得に買える・埼玉相互住宅では新築購入仲介手数料が無料・スーモ・アットホーム・ホームズなど各不動産情報サイトに掲載している越谷市・川口市・草加市・八潮市・春日部市・松伏町の新築物件情報の95%が仲介手数料無料です。 ■カースペース2台可能です!■食洗機・パントリー・土間収納・ウォークインクローゼットあり!

こちらの物件は埼玉相互住宅 越谷店が担当します!!

10:00-19:00(火・水定休)

物件詳細情報

最寄駅/交通
JR武蔵野線「南越谷」より徒歩12分
東武伊勢崎線「新越谷」より徒歩13分
所在地
埼玉県越谷市瓦曽根2丁目
販売価格
6,298万円 (税込)
間取り
4LDK
取引態様
仲介
建物構造
木造
土地面積
公簿 128.7㎡(38.93坪)
建物面積
105.45㎡(31.89坪)
建ぺい率
60%
容積率
160%
地目
宅地
都市計画
市街化区域
用途地域
第二種住居地域
現状
空家
引渡
相談
接道
東側4m公道
セットバック
不要
私道
無し
築年月
2025年11月
土地権利
所有権
設備
公営水道,本下水,都市ガス
建築確認番号
第25UDI1W建00467号
管理番号
84614
学区
西方小学校まで600m/大相模中学校まで1600m
リフォーム

物件登録日
2025年10月08日
掲載期限
2026-02-05
特記事項
備考
■西方小学校まで徒歩8分(約600m)・大相模中学校まで徒歩20分(約1600m)
キーワード
開発許可番号

このエリアの近隣物件

資料請求・見学予約フォームContact Form

お問合せ種別必須

お名前必須

メールアドレス必須

電話番号
郵便番号

都道府県

以降の住所

来場希望日時必須

ご希望の時間帯必須

※当日はお電話にてご予約ください。

お問合せ内容
その他ご要望など
近隣の物件情報が必要かどうか

COLUMN お役立ち情報

PageTop