一戸建て 埼玉県春日部市南3丁目 春日部市南3丁目 中古一戸建て 1,980万円 (税込) この物件に問合せる

Summary

所在地: 埼玉県春日部市南3丁目
交通: 東武伊勢崎線「春日部」より徒歩21分
東武伊勢崎線「一ノ割」より徒歩14分
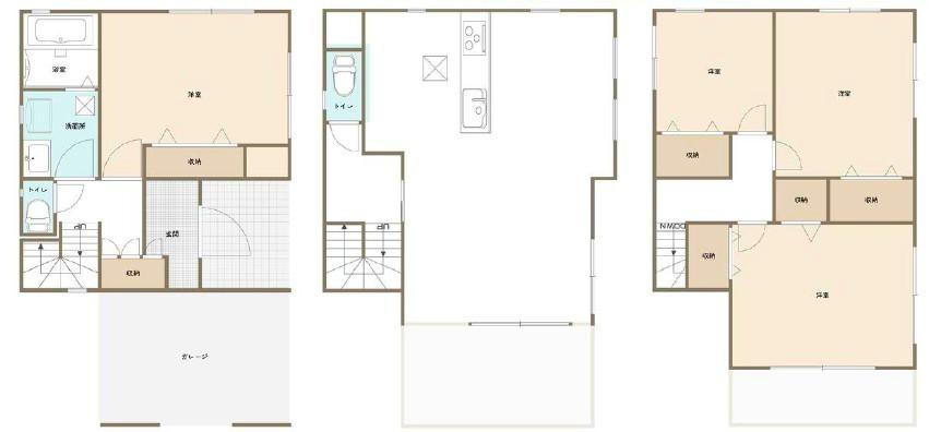
間取り: 4LDK
土地面積: 公簿78.85㎡(23.85坪)
建物面積: 108.47㎡(32.81坪)
築年数: 2014年10月(築11年)
物件の特徴:

オススメPOINT!!

全居室に収納がある4LDK・3階建て住宅!駐車1台可(車種による)!プライベート性の高い2階LDK!1階に水回りの集中した間取りです!教育・商業施設徒歩15分圏内!お気軽にお問い合わせください!

こちらの物件は埼玉相互住宅 春日部店が担当します!!

10:00~19:00(火・水定休)

物件詳細情報

最寄駅/交通
東武伊勢崎線「春日部」より徒歩21分
東武伊勢崎線「一ノ割」より徒歩14分
所在地
埼玉県春日部市南3丁目
販売価格
1,980万円 (税込)
間取り
4LDK
取引態様
仲介
建物構造
木造
土地面積
公簿 78.85㎡(23.85坪)
建物面積
108.47㎡(32.81坪)
建ぺい率
60%
容積率
200%
地目
宅地
都市計画
市街化区域
用途地域
第一種住居地域
現状
居住中
引渡
相談
接道
東側m
セットバック
不要
私道
無し
築年月
2014年10月(築11年)
土地権利
所有権
設備
公営水道,本下水,都市ガス
建築確認番号
管理番号
84515
学区
春日部市立上沖小学校まで1130m/春日部市立大沼中学校まで1950m
リフォーム

物件登録日
2025年10月07日
掲載期限
2025-10-19
特記事項
備考
キーワード
開発許可番号

このエリアの近隣物件

資料請求・見学予約フォームContact Form

お問合せ種別必須

お名前必須

メールアドレス必須

電話番号
郵便番号

都道府県

以降の住所

来場希望日時必須

ご希望の時間帯必須

※当日はお電話にてご予約ください。

お問合せ内容
その他ご要望など

COLUMN お役立ち情報

PageTop