一戸建て 埼玉県春日部市豊町5丁目 春日部市豊町5丁目 中古一戸建て 2,580万円 (税込) この物件に問合せる

Summary

所在地: 埼玉県春日部市豊町5丁目
交通: 東武伊勢崎線「春日部」より徒歩28分
東武野田線「八木崎」より徒歩18分
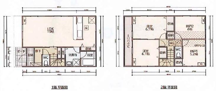
間取り: 4LDK
土地面積: 公簿100.29㎡(30.33坪)
建物面積: 99.01㎡(29.95坪)
築年数: 2015年01月(築11年)
物件の特徴:

オススメPOINT!!

南道路に面して陽当たり良好!全居室に収納がある4LDK! 駐車1台可(車種による)!水回りの集中した家事ラク動線! 立野小学校まで徒歩約6分(450m)でお子様の通学も安心です!

こちらの物件は埼玉相互住宅 春日部店が担当します!!

10:00~19:00(火・水定休)

物件詳細情報

最寄駅/交通
東武伊勢崎線「春日部」より徒歩28分
東武野田線「八木崎」より徒歩18分
所在地
埼玉県春日部市豊町5丁目
販売価格
2,580万円 (税込)
間取り
4LDK
取引態様
仲介
建物構造
木造
土地面積
公簿 100.29㎡(30.33坪)
建物面積
99.01㎡(29.95坪)
建ぺい率
60%
容積率
160%
地目
宅地
都市計画
市街化区域
用途地域
第一種中高層住居専用地域
現状
空家
引渡
相談
接道
南側4m私道
セットバック
不要
私道
有り 135㎡
築年月
2015年01月(築11年)
土地権利
所有権
設備
公営水道,本下水,プロパン
建築確認番号
管理番号
84353
学区
春日部市立立野小学校まで450m/春日部市立大増中学校まで1100m
リフォーム

物件登録日
2025年10月03日
掲載期限
2026-02-05
特記事項
備考
キーワード
開発許可番号

資料請求・見学予約フォームContact Form

お問合せ種別必須

お名前必須

メールアドレス必須

電話番号
郵便番号

都道府県

以降の住所

来場希望日時必須

ご希望の時間帯必須

※当日はお電話にてご予約ください。

お問合せ内容
その他ご要望など
近隣の物件情報が必要かどうか

COLUMN お役立ち情報

PageTop