一戸建て 埼玉県春日部市小渕 春日部市小渕 中古一戸建て 3,880万円 (税込) この物件に問合せる
所在地: | 埼玉県春日部市小渕 |
---|---|
交通: |
東武伊勢崎線「北春日部」より徒歩16分 東武伊勢崎線「姫宮」より徒歩30分 |
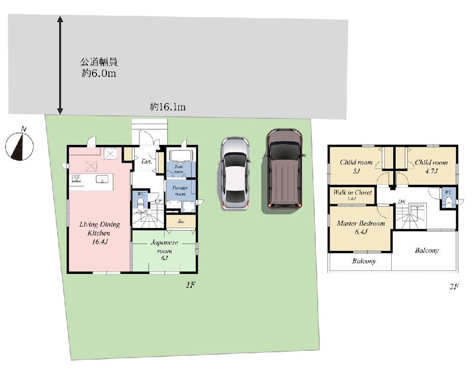
間取り: | 4LDK |
土地面積: | 公簿220.32㎡(66.64坪) |
建物面積: | 96.63㎡(29.23坪) |
築年数: | 2020年11月(築4年) |
物件の特徴: |
オススメPOINT!!
2020年11月築!セキスイハイム施工<軽量鉄骨造>の注文・オール電化住宅! 4LDK・WIC!駐車2台可(車種による)!水回りの集中した家事ラク動線! 小渕小学校まで徒歩約7分(550m)!
物件詳細情報
- 最寄駅/交通
- 東武伊勢崎線「北春日部」より徒歩16分
東武伊勢崎線「姫宮」より徒歩30分
- 所在地
- 埼玉県春日部市小渕
- 販売価格
- 3,880万円 (税込)
- 間取り
- 4LDK
- 取引態様
- 仲介
- 建物構造
- ALC造
- 土地面積
- 公簿 220.32㎡(66.64坪)
- 建物面積
- 96.63㎡(29.23坪)
- 建ぺい率
- 60%
- 容積率
- 200%
- 地目
- 宅地
- 都市計画
- 市街化調整区域
- 用途地域
- 現状
- 居住中
- 引渡
- 相談
- 接道
- 北側6m公道
- セットバック
- 不要
- 私道
- 無し
- 築年月
- 2020年11月(築4年)
- 土地権利
- 所有権
- 設備
- 公営水道,浄化槽,
- 建築確認番号
- 管理番号
- 84268
- 学区
- 春日部市立小渕小学校まで550m/春日部市立東中学校まで2800m
- リフォーム
- 物件登録日
- 2025年09月30日
- 掲載期限
- 2025-10-17
- 特記事項
- 備考
- ・ガス/引込なし(オール電化)
- キーワード
- 開発許可番号