新築一戸建て 埼玉県川口市大字安行原 【仲介手数料無料】川口市大字安行原 全4棟のD号棟 新築一戸建て 3,690万円 (税込) この物件に問合せる

Summary

所在地: 埼玉県川口市大字安行原
交通: 東武伊勢崎線「草加」よりバス乗車18分、「安行原団地」より徒歩15分
JR京浜東北・根岸線「川口」よりバス乗車37分、「峯八幡宮」より徒歩4分
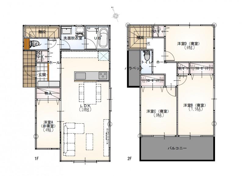
間取り: 4LDK
土地面積: 公簿139.52㎡(42.2坪)
建物面積: 101.02㎡(30.55坪)
築年数: 2025年04月
物件の特徴:

オススメPOINT!!

【仲介手数料無料!】新築住宅がお得に買える・埼玉相互住宅では新築購入仲介手数料が無料・スーモ・アットホーム・ホームズなど各不動産情報サイトに掲載している越谷市・川口市・草加市・八潮市・春日部市・松伏町の新築物件情報の95%が仲介手数料無料です。 ■全4棟のD号棟・LDK18帖・対面式キッチン

こちらの物件は埼玉相互住宅 越谷店が担当します!!

10:00-19:00(火・水定休)

物件詳細情報

最寄駅/交通
東武伊勢崎線「草加」よりバス乗車18分、「安行原団地」より徒歩15分
JR京浜東北・根岸線「川口」よりバス乗車37分、「峯八幡宮」より徒歩4分
所在地
埼玉県川口市大字安行原
販売価格
3,690万円 (税込)
間取り
4LDK
取引態様
仲介
建物構造
木造
土地面積
公簿 139.52㎡(42.2坪)
建物面積
101.02㎡(30.55坪)
建ぺい率
50%
容積率
100%
地目
宅地
都市計画
市街化区域
用途地域
第一種低層住居専用地域
現状
空家
引渡
相談
接道
西側4m公道
セットバック
不要
私道
無し
築年月
2025年04月
土地権利
所有権
設備
公営水道,,プロパン
建築確認番号
第SJK-KX245105940号
管理番号
84143
学区
安行小学校まで250m/安行中学校まで600m
リフォーム

物件登録日
2025年09月28日
掲載期限
2025-10-20
特記事項
備考
■カースペース2台可能です! ■安行小学校まで徒歩4分(約250m)・安行中学校まで徒歩8分(約600m) ※不整形地
キーワード
開発許可番号

このエリアの近隣物件

資料請求・見学予約フォームContact Form

お問合せ種別必須

お名前必須

メールアドレス必須

電話番号
郵便番号

都道府県

以降の住所

来場希望日時必須

ご希望の時間帯必須

※当日はお電話にてご予約ください。

お問合せ内容
その他ご要望など

COLUMN お役立ち情報

PageTop