新築一戸建て 埼玉県越谷市登戸町 【仲介手数料無料】越谷市登戸町 新築一戸建て 4,780万円 (税込) この物件に問合せる

Summary

所在地: 埼玉県越谷市登戸町
交通: JR武蔵野線「南越谷」より徒歩13分
東武伊勢崎線「新越谷」より徒歩14分
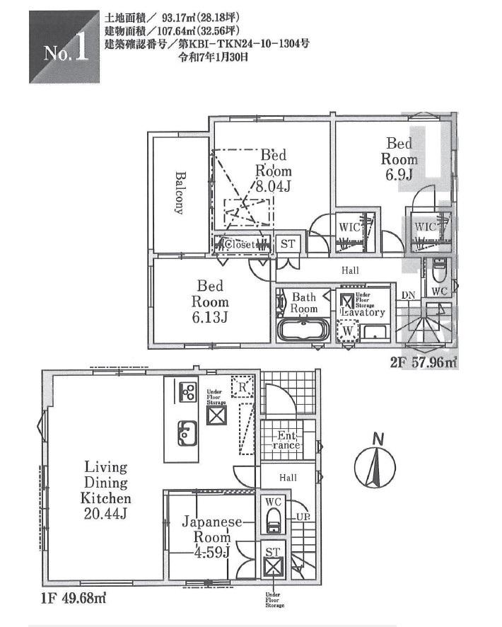
間取り: 4LDK
土地面積: 93.17㎡(28.18坪)
建物面積: 107.64㎡(32.56坪)
築年数: 2025年07月
物件の特徴:

オススメPOINT!!

【仲介手数料無料!】新築住宅がお得に買える・埼玉相互住宅では新築購入仲介手数料が無料・スーモ・アットホーム・ホームズなど各不動産情報サイトに掲載している越谷市・川口市・草加市・八潮市・春日部市・松伏町の新築物件情報の95%が仲介手数料無料です。 北西角地!全居室に収納がある4LDK!2階洗面室なのでバルコニーへの洗濯物の移動がスムーズ!広々とした約20帖のリビング空間です!JR武蔵野線「南越谷」駅徒歩約13分!通勤通学に便利な立地です!

こちらの物件は埼玉相互住宅 蒲生本店が担当します!!

10:00-19:00(火・水定休)

物件詳細情報

最寄駅/交通
JR武蔵野線「南越谷」より徒歩13分
東武伊勢崎線「新越谷」より徒歩14分
所在地
埼玉県越谷市登戸町
販売価格
4,780万円 (税込)
間取り
4LDK
取引態様
仲介
建物構造
木造
土地面積
93.17㎡(28.18坪)
建物面積
107.64㎡(32.56坪)
建ぺい率
60%
容積率
200%
地目
宅地
都市計画
市街化区域
用途地域
準工業地域
現状
空家
引渡
相談
接道
北側4m公道 ,西側8.1m公道
セットバック
不要
私道
無し
築年月
2025年07月
土地権利
所有権
設備
公営水道,本下水,都市ガス
建築確認番号
第KBI-TKN24-10-1304号
管理番号
84019
学区
越谷市立蒲生小学校まで800m/越谷市立南中学校まで1200m
リフォーム

物件登録日
2025年09月23日
掲載期限
2025-10-25
特記事項
備考
キーワード
開発許可番号

資料請求・見学予約フォームContact Form

お問合せ種別必須

お名前必須

メールアドレス必須

電話番号
郵便番号

都道府県

以降の住所

来場希望日時必須

ご希望の時間帯必須

※当日はお電話にてご予約ください。

お問合せ内容
その他ご要望など

COLUMN お役立ち情報

PageTop