マンション 埼玉県越谷市千間台西2丁目 ヴェルビュせんげん台ステーションプラザ 2階/10階建 2,990万円 (税込) この物件に問合せる

Summary

所在地: 埼玉県越谷市千間台西2丁目
交通: 東武伊勢崎線「せんげん台」より徒歩3分
東武伊勢崎線「大袋」より徒歩17分
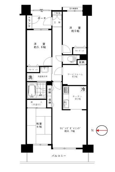
間取り: 3SLDK
専有面積: 75.72㎡(22.9坪)
築年数: 1998年09月(築27年)
管理費: 9,500円/月
修繕積立金: 13,400円/月
物件の特徴:

オススメPOINT!!

令和7年9月新規リフォーム完了済!玄関には一戸建てのようなポーチ付き!ワイドバルコニー!サービスルーム有り、収納豊富 お気軽にお問合せ下さい(*^_^*)

こちらの物件は埼玉相互住宅 北越谷店が担当します!!

10:00-19:00(火・水定休)

物件詳細情報

最寄駅/交通
東武伊勢崎線「せんげん台」より徒歩3分
東武伊勢崎線「大袋」より徒歩17分
所在地
埼玉県越谷市千間台西2丁目
販売価格
2,990万円 (税込)
管理費
9500円/月
修繕積立金
13400円/月
専有面積(壁芯)
75.72㎡(22.9坪)
バルコニー面積
9.27㎡
間取り
3SLDK
主要採光面
西
所在階/階数
2階/10階建
総戸数
173戸
築年月
1998年09月(築27年)
取引態様
仲介
建物構造
RC(鉄筋コンクリート)
都市計画
用途地域
現状
空家
管理形態
全部委託
土地権利
所有権
設備
公営水道,,
駐車場
無し
駐輪場
バイク置場
専用庭
無し
管理番号
83972
学区
越谷市立大袋北小学校まで477m/越谷市立北中学校まで821m
物件登録日
2025年09月22日
リフォーム

掲載期限
2025-12-21
特記事項
備考
キーワード

資料請求・見学予約フォームContact Form

お問合せ種別必須

お名前必須

メールアドレス必須

電話番号
郵便番号

都道府県

以降の住所

来場希望日時必須

ご希望の時間帯必須

※当日はお電話にてご予約ください。

お問合せ内容
その他ご要望など
近隣の物件情報が必要かどうか

COLUMN お役立ち情報

PageTop