新築一戸建て 埼玉県草加市氷川町 【仲介手数料無料】草加市氷川町 新築一戸建て 5,199万円 (税込) この物件に問合せる

Summary

所在地: 埼玉県草加市氷川町
交通: 東武伊勢崎線「草加」より徒歩15分
東武伊勢崎線「谷塚」より徒歩14分
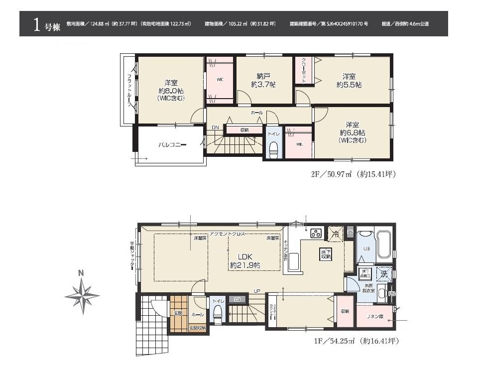
間取り: 3SLDK
土地面積: 124.88㎡(37.77坪)
建物面積: 105.22㎡(31.82坪)
築年数: 2025年05月
物件の特徴:

オススメPOINT!!

【仲介手数料無料!】新築住宅がお得に買える・埼玉相互住宅では新築購入仲介手数料が無料・スーモ・アットホーム・ホームズなど各不動産情報サイトに掲載している越谷市・川口市・草加市・八潮市・春日部市・松伏町の新築物件情報の95%が仲介手数料無料です。 全居室に収納がある3LDK・WIC×2か所・リネン庫・納戸!駐車スペース2台可(車種による)!広々とした約21.9帖のリビングには足元あったか床暖房付き!氷川小学校まで徒歩約5分(350m)!

こちらの物件は埼玉相互住宅 蒲生本店が担当します!!

10:00-19:00(火・水定休)

物件詳細情報

最寄駅/交通
東武伊勢崎線「草加」より徒歩15分
東武伊勢崎線「谷塚」より徒歩14分
所在地
埼玉県草加市氷川町
販売価格
5,199万円 (税込)
間取り
3SLDK
取引態様
仲介
建物構造
木造
土地面積
124.88㎡(37.77坪)
建物面積
105.22㎡(31.82坪)
建ぺい率
60%
容積率
185%
地目
宅地
都市計画
市街化区域
用途地域
第一種中高層住居専用地域
現状
空家
引渡
相談
接道
西側4.6m公道
セットバック
不要
私道
無し
築年月
2025年05月
土地権利
所有権
設備
公営水道,本下水,都市ガス
建築確認番号
第SJK-KX245910170号
管理番号
83887
学区
草加市立氷川小学校まで350m/草加市立谷塚中学校まで1000m
リフォーム

物件登録日
2025年09月20日
掲載期限
2025-11-07
特記事項
備考
キーワード
開発許可番号

資料請求・見学予約フォームContact Form

お問合せ種別必須

お名前必須

メールアドレス必須

電話番号
郵便番号

都道府県

以降の住所

来場希望日時必須

ご希望の時間帯必須

※当日はお電話にてご予約ください。

お問合せ内容
その他ご要望など

COLUMN お役立ち情報

PageTop